Portuarrak

La arquitectura vernácula del arrabal de pescadores de Hondarribia

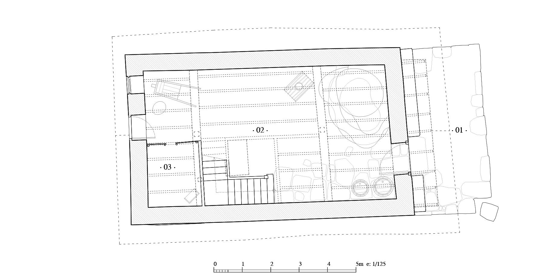
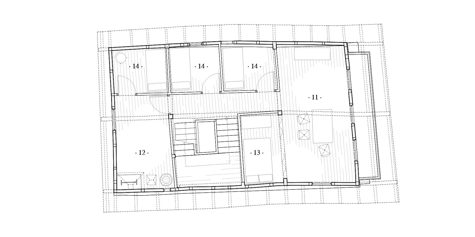
Este trabajo tiene como objetivo principal reconstruir en detalle la historia del arrabal de pescadores de Hondarribia y estudiarlo desde una perspectiva que relaciona el análisis arquitectónico y urbano con los modos de vida de la comunidad marítima local. El uso del dibujo como herramienta de investigación permite realizar un análisis combinado en el que documentos, cartografías históricas, fotografías e iconografías, se traducen en planos y dibujos que reconstruyen sobre el papel la arquitectura vernácula de un barrio que conservó su estructura tradicional hasta los primeros años del siglo XX, pero que desgraciadamente, ha desaparecido en gran medida.

Gracias a esta investigación, hemos podido reconstruir con gran precisión el origen y evolución del asentamiento, descifrando las características de las casas de pescadores tradicionales que formaron parte de las comunidades marítimas vascas y desaparecieron por las fuertes alteraciones y destrucciones que han sufrido la mayor parte de las poblaciones litorales del cantábrico.

El estudio de este tipo de arquitectura resulta imprescindible, pues las transformaciones urbanas llevadas a cabo desde el pasado siglo, tan poco sensibles, siguen borrando del mapa día a día la mayor parte de estas arquitecturas populares, siempre frágiles, fáciles de alterar, desfigurar o destruir, propensa ‒por desgracia‒ a quedar fuera de la protección de nuestro patrimonio construido.

Descarga gratuita del libro

Autores
Aritz Díez Oronoz, Josu Narbarte Hernández
Financiación
Arma Plaza Fundazioa
Tema
La otra arquitectura vernácula vasca
Años
2021-2024