Grajal de Campos
1er Premio Richard H. Driehaus Architecture Competition 2017
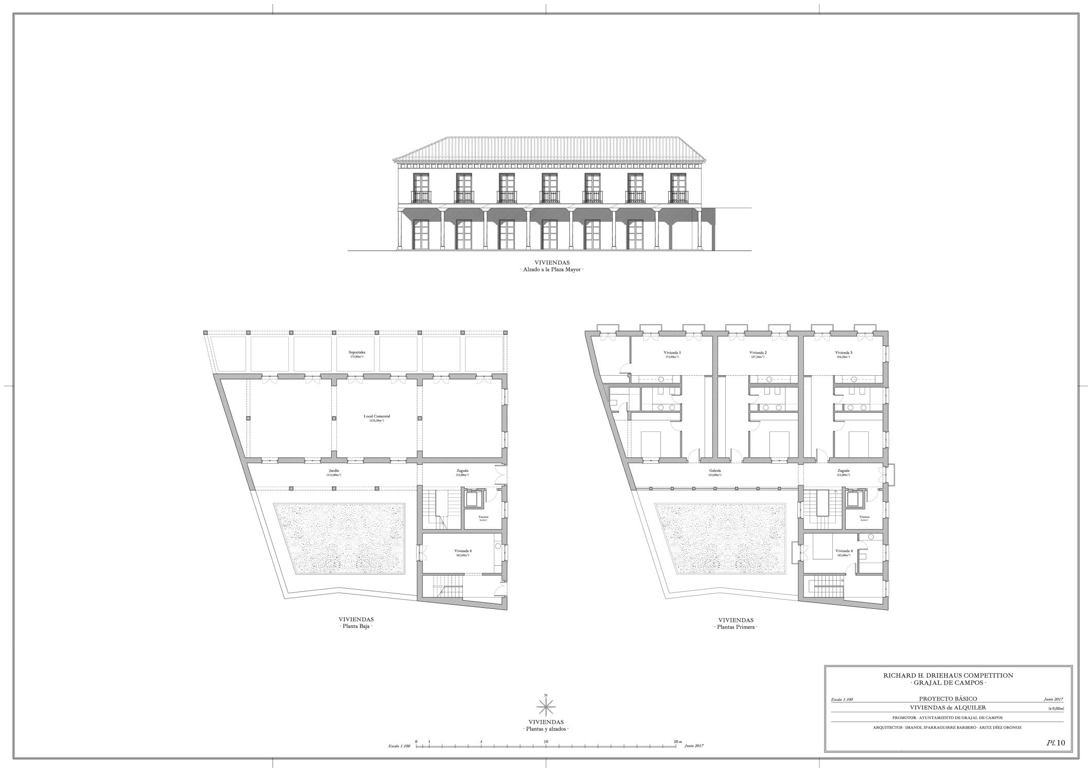
Recuperar lo borrado. Con nuestra propuesta para Grajal de Campos, pretendíamos recuperar la imagen perdida del lugar. El palacio de los condes de Grajal de Campos, junto con la plaza Mayor y la iglesia de San Miguel, constituyen uno de los mejores conjuntos de arquitectura renacentista temprana en España. Sin embargo, el paso del tiempo y la fragilidad de los materiales utilizados en su construcción han llevado al conjunto a un preocupante estado de deterioro, en el que las estructuras de tapial y ladrillo de los edificios se están desintegrando lentamente debido a años de abandono. Solo los elementos más dignos de los edificios, construidos en piedra, se conservan en buen estado.
El palacio, encargado por Juan de Vega (ca. 1507-1558), virrey de Navarra y Sicilia, y continuado por su hijo Juan de Vega y Enríquez de Toledo (1563-1611), primer conde de Grajal, constituye un ejemplo canónico y sorprendentemente completo de palacio aristocrático español. El patio, la escalera y la logia que da a la plaza Mayor representan los rasgos más característicos de este singular edificio que, lamentablemente, ha perdido muchos de sus elementos originales.
El objetivo de nuestra propuesta era recuperar el aspecto y la tipología originales tanto del palacio como de la plaza Mayor empleando técnicas de construcción tradicionales, al tiempo que intentábamos reconstruir todos aquellos elementos arquitectónicos -como la fuente octogonal, los jardines u otros elementos arquitectónicos- que antaño se alzaban en este lugar. Además, el palacio debía modificarse para albergar nuevas funciones que garantizasen su futuro uso como ayuntamiento, centro cultural y hotel.
- Arquitectos
- Aritz Díez Oronoz, Imanol Iparraguirre
- Ubicación
- Grajal de Campos (León)
- Cliente
- Ayuntamiento de Grajal de Campos
- Tipo
- Restauración · Espacio Público · Residencial
- Superficie
- 3.175 m²
- Año
- 2017
- Estado
- No construido