Trujillo
1er Premio Richard H. Driehaus Architecture Competition 2018
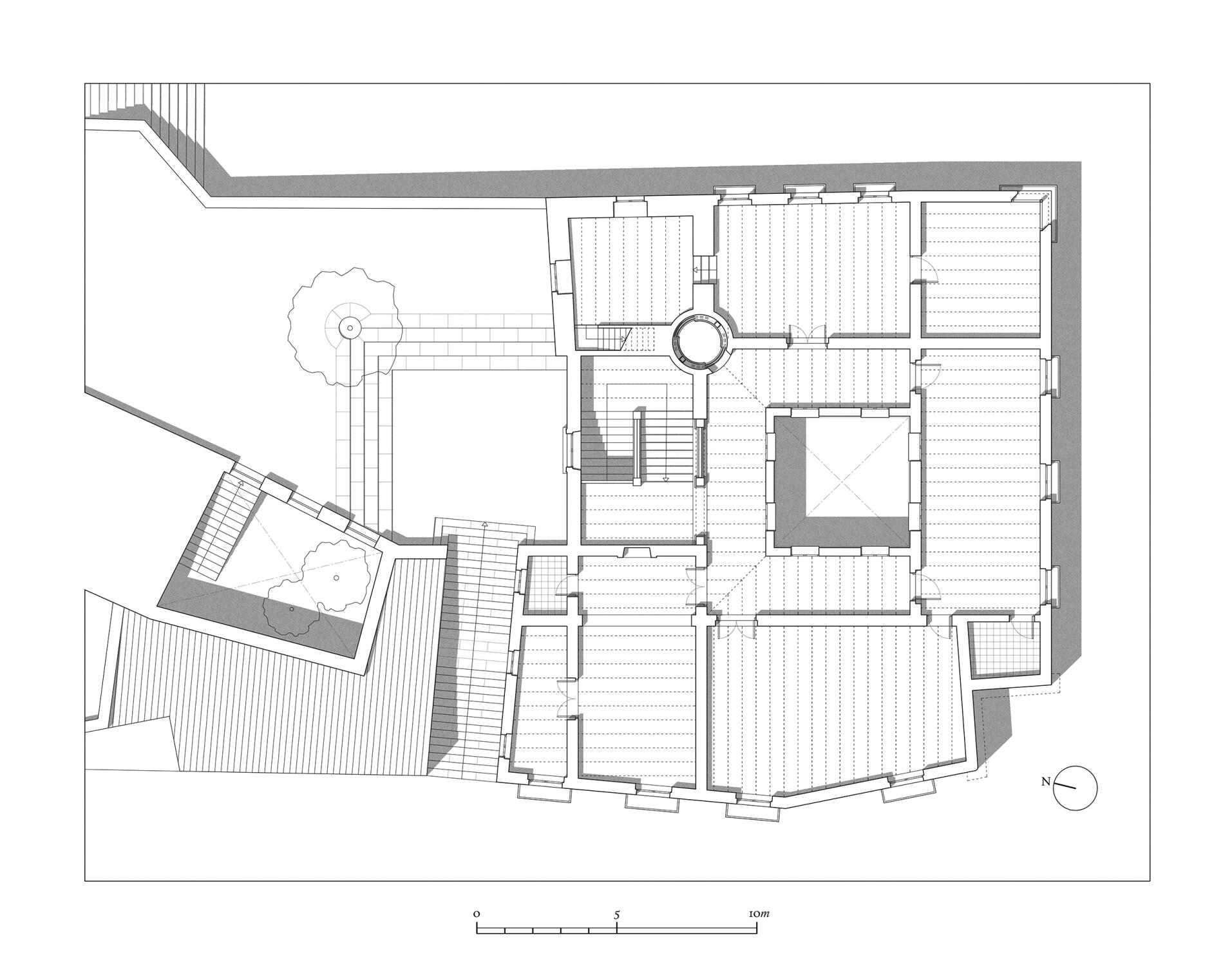
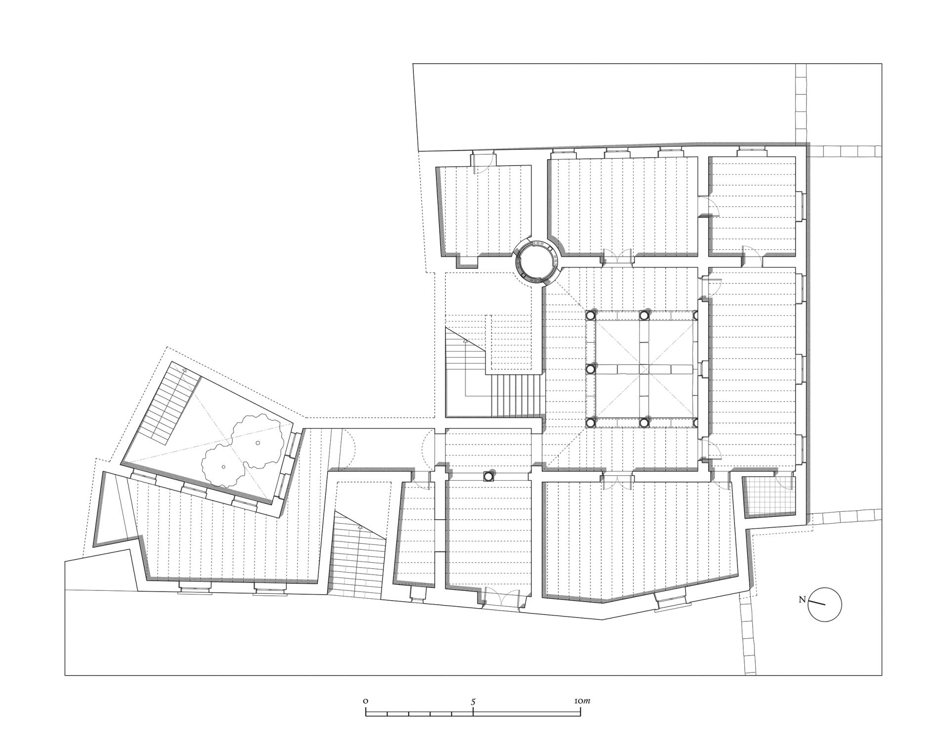
Diseñar un edificio en un centro histórico como el de Trujillo suele ser un ejercicio de bricolage. Un proceso complejo durante el cual vienen a nuestra memoria los recuerdos de aquellas arquitecturas que nos son queridas, y se constituyen en una suerte de memoria analógica que hemos construido con perseverancia y pasión a lo largo del tiempo.
Trujillo es una ciudad que se hace eco de muchas otras, sus palacios se construyen integrando en su diseño fragmentos de arquitecturas de épocas y orígenes muy diversos. Dentro de la ciudad podemos encontrar huellas de su pasado medieval entrelazadas con patios y logias de tradición italiana. También encontramos elementos arquitectónicos llenos de carácter y creatividad que son exclusivos de esta región de España: ventanas y balcones en esquina, chimeneas monumentales, cilindros compactos que ocupan los ángulos de torres rectangulares y que suelen contener escaleras de caracol... etc. Todos estos elementos están cincelados en la misma piedra granítica que da color y carácter a esta ciudad, donde tanto los edificios como la roca natural emergen del suelo formando un conjunto de extraordinaria belleza y coherencia.
Nuestra propuesta consistió en varias intervenciones repartidas en el entorno del Convento de La Coria: un nuevo edificio para albergar la ampliación de la Fundación Xavier de Salas, la renovación urbana de la Plaza de Moritos y un parque fuera de las murallas medievales. En lugar de intentar diferenciar vanamente las restauraciones y los nuevos edificios del tejido existente, intentamos integrarlos. En lugar de la insaciable sed de originalidad, nos decantamos por la serenidad de los modelos conocidos.
- Arquitectos
- Aritz Díez Oronoz, Imanol Iparraguirre
- Ubicación
- Trujillo (Cáceres)
- Cliente
- Ayuntamiento de Trujillo
- Tipo
- Restauración · Espacio Público
- Superficie
- 2,36 Ha
- Año
- 2018
- Estado
- No construido