Vitoria
Reforma de vivienda
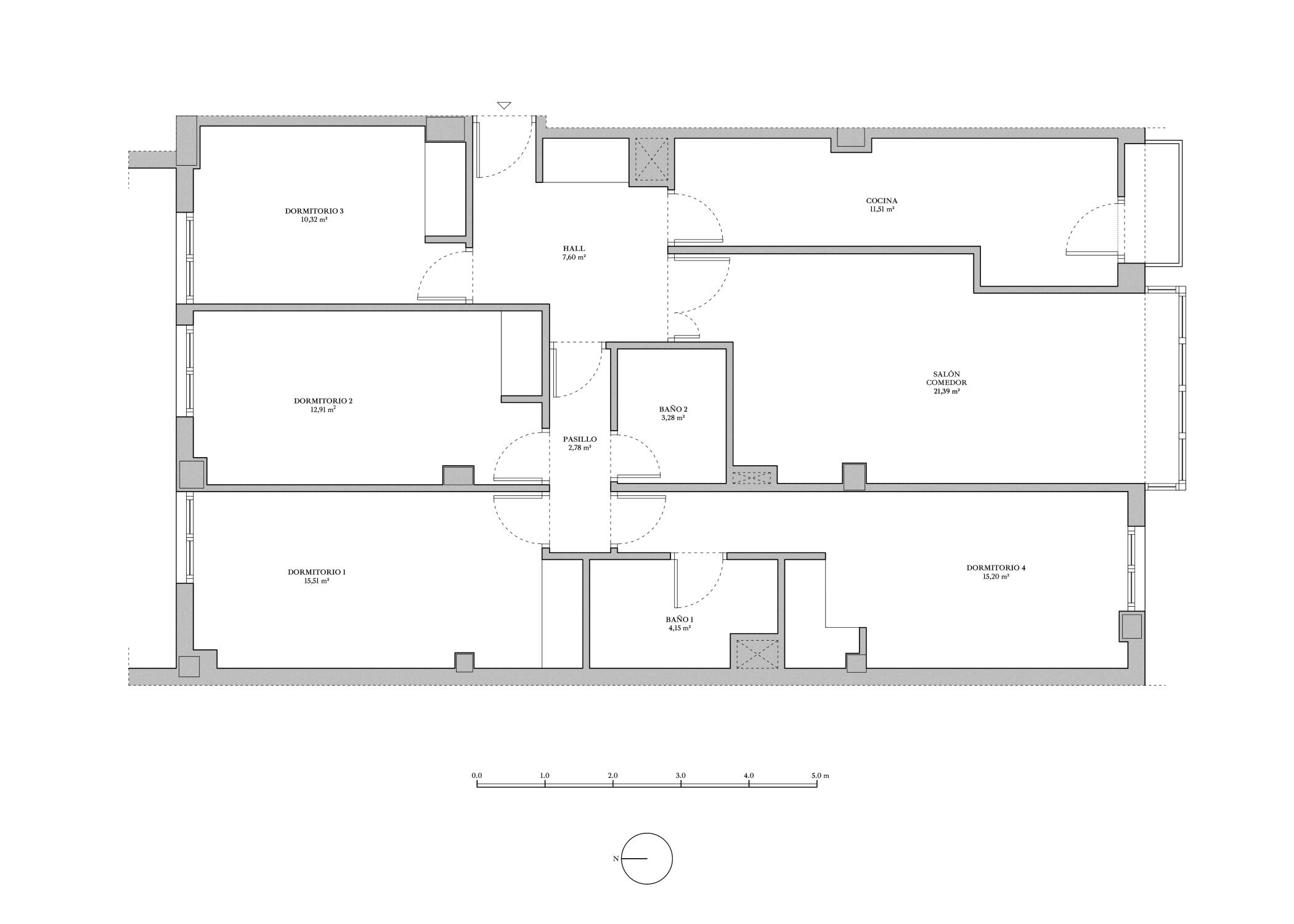
Esta vivienda de los años 90 no se adaptaba a las necesidades ni estilo de vida de una pareja joven formando una familia. La zona de estar era demasiado pequeña, no existía comunicación entre cocina y comedor, se perdía demasiado espacio en circulaciones y los materiales hacían que la vivienda, que contaba con una inmejorable orientación y soleamiento, resultase oscura.
Para adaptar la vivienda a sus nuevos propietarios, se amplió sustancialmente la zona de estar y comedor -orientada a sur y con vistas despejadas- al incorporar a ella uno de los dormitorios, y también se unió visualmente la cocina de manera que esta quedase integrada en el espacio principal de la vivienda, logrando así una mayor amplitud y luminosidad al unir tres piezas anteriormente divididas por particiones ciegas.
Los dormitorios -principal, de niños y un tercero para invitados que hace las veces de despacho comunicado directamente con el recibidor- se mantuvieron orientados a norte, al tiempo que se reorganizaban los baños y se maximizaban las zonas de almacenaje, logrando incorporar un vestidor al dormitorio principal. Del mismo modo, y para conseguir dos zonas de teletrabajo separadas dentro de la vivienda, se incorporó un puesto de trabajo escamoteable dentro de la zona de estar.
- Arquitectos
- Imanol Iparraguirre, Aritz Díez Oronoz
- Ubicación
- Vitoria (Álava)
- Cliente
- Privado
- Tipo
- Reforma · Vivienda
- Gremios
- Carpintería El Idrissi, Cocinas Villén, Armentia
- Año
- 2024
- Estado
- Construido